Barge Ballasting adalah proses pengisian air ke dalam tangki ballast kapal tongkang untuk mengatur stabilitas, keseimbangan, dan daya apung. Air ballast dimasukkan ke dalam tangki khusus ketika tongkang dalam kondisi kosong atau setengah muat, sehingga kapal tidak terlalu tinggi di air dan tetap stabil selama operasi.

Dalam operasi pengangkatan berat menggunakan crane di atas tongkang, barge ballasting berperan penting untuk menjaga stabilitas kapal saat crane melakukan swing kanan-kiri. Ketika crane mengangkat dan memindahkan beban berat, pusat gravitasi tongkang akan bergeser, berisiko menyebabkan kemiringan (listing) yang berbahaya. Dengan mengatur air ballast di tangki kanan dan kiri secara dinamis, berat tongkang dapat didistribusikan ulang untuk menyeimbangkan momen gaya dari crane. Misalnya, saat crane mengayun ke kanan, tangki ballast di sisi kiri dapat diisi lebih banyak untuk mengimbangi kemiringan, atau sebaliknya. Proses ini membutuhkan sistem kontrol otomatis atau pengawasan awak kapal untuk memastikan tongkang tetap stabil selama operasi.

Selama crane beroperasi, deballasting (pengosongan ballast) dan ballasting (pengisian ballast) dilakukan secara dinamis untuk menyesuaikan kondisi beban. Jika crane mengangkat muatan berat ke sisi kanan, air ballast di tangki kanan mungkin dikurangi sementara tangki kiri diisi lebih banyak agar tongkang tidak miring berlebihan. Sebaliknya, saat crane berputar ke kiri, sistem harus cepat merespons dengan menyesuaikan ballast agar kapal tetap seimbang.

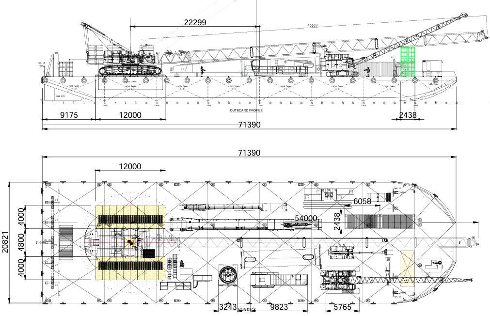
Crane Barge adalah sebuah tongkang (barge) yang dilengkapi dengan crane berkapasitas besar, dirancang khusus untuk melakukan operasi pengangkatan dan pemindahan beban berat di perairan. Kapal ini umumnya digunakan dalam proyek konstruksi lepas pantai, instalasi struktur bawah laut, bongkar muat kapal, atau pekerjaan di area pelabuhan yang membutuhkan stabilitas tinggi saat crane beroperasi. Crane barge didesain dengan sistem ballast yang dapat diatur untuk menjaga keseimbangan (stabilitas) saat mengangkat beban, terutama ketika crane melakukan gerakan swing (berputar) yang dapat menyebabkan kemiringan (listing). Dengan kombinasi daya apung tongkang dan kekuatan crane, crane barge menjadi solusi efisien untuk operasi berat di lingkungan maritim.

Proses ini sering menggunakan sistem ballast otomatis yang terhubung dengan sensor kemiringan (inclinometer) untuk meminimalkan risiko kegagalan manual. Masalahnya sekarang adalah sistem ballastnya tidak secara otomatis, namun masih harus manual. Bagaimana menghitung stabilitas kapal agar pemindahan, pengisian air ballast dan pembuangan air ballast ini tepat dan effesien sehingga stabilitas kapal, baik trim maupun list dapat dipertahankan kestabilannya?
Ketika sistem ballast bekerja secara manual, perhitungan stabilitas harus dilakukan secara cermat untuk memastikan kapal tetap stabil saat crane melakukan pengangkatan dan swing. Berikut pendekatan yang dapat digunakan:
Perhitungan Dasar Stabilitas (Stabilitas Awal)
GM (Metacentric Height): Pastikan nilai GM kapal dalam kondisi aman (biasanya > 0,5 meter untuk tongkang dengan crane). GM dihitung dengan:
GM=KM−KG
- KM (Tinggi metasentrik) → Dapat diperoleh dari hydrostatic curves kapal berdasarkan draft saat ini.
- KG (Tinggi pusat gravitasi) → Diukur dari dasar kapal ke titik berat total (termasuk crane, muatan, dan ballast).
GZ (Lengan Stabilitas): Kurva stabilitas harus menunjukkan bahwa kapal memiliki righting moment yang cukup saat miring (listing) akibat swing crane.
Perhitungan Pengaruh Crane & Beban
Momen Guling (Heeling Moment) dari Crane:
Heeling Moment = Beban × Jarak Horizontal dari CL (Centerline)
Jika crane mengangkat 100 ton dengan jangkauan 10 meter dari centerline, maka:
Heeling Moment = 100 × 10 = 1000 ton-meter
Kompensasi dengan Ballast:
Untuk menetralkan momen guling, tambahkan ballast di sisi berlawanan.
Berat Ballast × Lever Arm = Heeling Moment
Contoh: Jika ingin mengimbangi 1000 ton-meter dengan ballast di sisi kiri (jarak 8-meter dari CL):
Berat Ballast = 1000 / 8 = 125-ton air
Artinya, perlu mengisi ±125-ton air ballast di tangki kiri (atau mengurangi ballast kanan jika sudah ada).
Prosedur Operasional Manual untuk Efisiensi
Sebelum Operasi Crane:
- Hitung KG dan GM awal berdasarkan kondisi muatan & ballast.
- Siapkan rencana pengisian/pengurangan ballast sesuai pergerakan crane.
Saat Crane Beroperasi:
- Monitor Sudut Kemiringan (List): Gunakan inclinometer sederhana.
Lakukan Adjust Ballast Bertahap:
- Jika crane swing kanan → isi ballast kiri atau buang ballast kanan.
- Jika crane mengangkat beban berat → pastikan GM tetap positif dengan menyesuaikan ballast.
Kontrol Trim:
- Pastikan perbedaan draft depan-belakang (trim) tidak melebihi batas aman (biasanya maks 1-2% LOA kapal).
Alat Bantu untuk Perhitungan Manual
Tabel Hidrostatik & Kurva Stabilitas → Untuk referensi cepat KM, TPC (Ton per Centimeter Immersion), dan LWT (Lightweight).

Spreadsheet Kalkulasi Stabilitas → Mempermudah penghitungan KG, GM, dan momen guling.
Checklist Ballast Log → Mencatat perubahan ballast untuk menghindari kesalahan.
Contoh Kasus Praktis
Kondisi:
- Tongkang dengan crane mengangkat 50 ton di jangkauan 15 meter dari centerline.
- Heeling Moment = 50 × 15 = 750 ton-meter.
- Jarak tangki ballast kiri dari CL = 10 meter.
- Ballast diperlukan = 750 / 10 = 75 ton (isi di kiri atau kurangi kanan).
Maka Langkahnya seperti dibawah ini:
- Sebelum angkat, isi 75-ton air di tangki kiri.
- Saat crane swing, pantau kemiringan. Jika masih miring, tambah ballast kiri sedikit demi sedikit.
- Setelah operasi selesai, kembalikan ballast ke kondisi netral.
Contoh Perhitungan dan Simulasi Crane Swing pada Crane Barge:






