Lifting plan merupakan sebuah dokumen yang menyajikan langkah-langkah yang akan diikuti saat pengangkatan atau pemindahan beban berat di lingkungan kerja. Dokumen ini memiliki peran penting dalam pelaksanaan pengangkatan yang aman serta sesuai dengan standar keselamatan yang berlaku. Dokumen tersebut mencakup berbagai elemen seperti rincian tugas yang akan dilaksanakan, evaluasi risiko yang timbul, metode pengangkatan yang direncanakan, skema komunikasi antar personil, prosedur darurat yang harus diikuti, penugasan personil, bagaimana melaksanakan pemeriksaan alat dan peralatan, serta pencatatan dan pemantauan selama pelaksanaan pengangkatan tersebut.

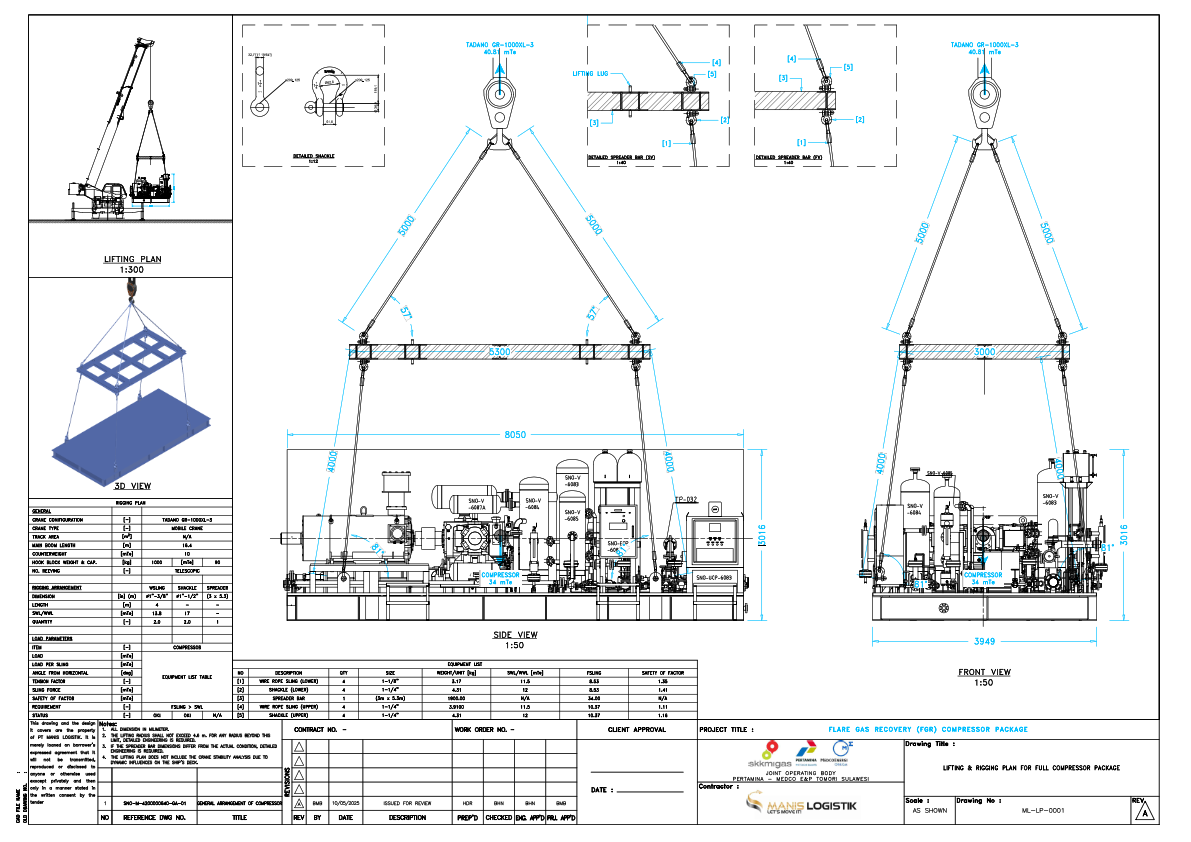
Sebelum memulai proses pengangkatan, persiapan awal adalah kunci untuk memastikan keamanan dan efisiensi. Langkah pertama dalam rencana ini adalah melakukan inspeksi menyeluruh terhadap semua peralatan yang akan digunakan, termasuk kedua unit crane – crawler crane dan mobile crane – serta alat bantu lainnya. Pastikan semua alat dalam kondisi baik dan memenuhi standar keselamatan.

Selanjutnya, lakukan analisis situasi lokasi pengangkatan. Pahami medan di sekitar trailer tempat compressor dan air cooler berada. Ini termasuk memeriksa stabilitas tanah, potensi hambatan, dan ruang gerak yang tersedia untuk operasi crane. Mengidentifikasi semua risiko potensial akan membantu dalam merumuskan strategi mitigasi yang efektif.

Crawler crane dirancang untuk menangani beban berat dan memberikan stabilitas yang lebih baik, ideal untuk pengangkatan dari trailer. Sementara itu, mobile crane memiliki fleksibilitas tinggi dan dapat bergerak dengan cepat di lokasi. Proses dimulai dengan penempatan crawler crane di dekat trailer. Setelah itu, operator crane akan menentukan titik pengangkatan yang tepat pada compressor dan air cooler untuk memastikan distribusi beban yang seimbang. Dengan bantuan tim teknis, kabel pengangkat (lifting sling) akan dipasang di posisi yang telah ditentukan dengan hati-hati. Setelah penyelesaian tahap ini, penggunaan mobile crane diperlukan untuk mengangkat unit tersebut ke LCT (Landing Craft Tank). Mobile crane akan berfungsi untuk memindahkan compressor dan air cooler dari crawler crane ke LCT, sehingga meminimalkan kemungkinan benturan atau kerusakan selama pemindahan.

Setelah tiba di lokasi yang dituju, langkah selanjutnya adalah melakukan pengangkatan di gudang. Di sinilah peran sperader bar sangat penting. Sperader bar adalah alat bantu yang digunakan untuk menjaga kestabilan dan keseimbangan beban saat diangkat. Dengan menggunakan satu unit mobile crane 100 ton, proses pengangkatan di gudang ini akan lebih aman dan efisien.






