Lifting plan adalah dokumen yang merinci prosedur yang akan dilakukan saat melakukan pengangkatan atau pemindahan beban berat di tempat kerja. Dokumen ini sangat penting untuk memastikan bahwa kegiatan pengangkatan dilakukan dengan aman dan sesuai dengan standar keselamatan yang ditetapkan. Isinya mencakup deskripsi pekerjaan yang akan dilakukan, penilaian risiko yang terkait, metode pengangkatan yang akan digunakan, rencana komunikasi antar personil, prosedur darurat, penugasan personil, pengecekan alat dan peralatan, serta pencatatan dan pemantauan pelaksanaan pengangkatan.

Dengan adanya lifting plan, keselamatan pekerja dapat ditingkatkan karena semua aspek yang terkait dengan pengangkatan dipertimbangkan dengan seksama sebelumnya, sehingga dapat mengurangi risiko terjadinya kecelakaan atau cedera. Selain itu, lifting plan juga membantu memastikan kepatuhan terhadap standar keselamatan yang berlaku dan meningkatkan efisiensi dalam melakukan kegiatan pengangkatan beban. Dengan demikian, lifting plan menjadi instrumen yang penting dalam menjaga keselamatan dan kesehatan pekerja di lingkungan kerja.
Manfaat Lifting Plan sangatlah beragam dan memiliki dampak positif yang signifikan dalam lingkungan kerja. Berikut adalah beberapa manfaat utama dari implementasi Lifting Plan:
- Meningkatkan Keselamatan Kerja
Lifting Plan membantu dalam merencanakan dan menjalankan kegiatan pengangkatan beban dengan mempertimbangkan faktor-faktor risiko potensial. Dengan demikian, hal ini membantu meningkatkan kesadaran terhadap keselamatan di tempat kerja dan mengurangi kemungkinan terjadinya kecelakaan atau cedera. - Mencegah Kecelakaan dan Cedera
Dengan merinci prosedur yang jelas dan pencegahan yang tepat, Lifting Plan membantu dalam mengidentifikasi dan mengatasi potensi bahaya sebelum terjadi. Ini dapat mencegah kecelakaan dan cedera yang disebabkan oleh kegiatan pengangkatan beban yang tidak terencana dengan baik. - Meningkatkan Efisiensi dan Produktivitas
Dengan merencanakan metode pengangkatan yang efisien dan memastikan bahwa semua personil terlibat memahami peran dan tanggung jawab mereka, Lifting Plan dapat meningkatkan efisiensi dalam pelaksanaan kegiatan pengangkatan. Hal ini pada akhirnya berdampak pada peningkatan produktivitas di tempat kerja. - Menghemat Waktu dan Biaya
Dengan melakukan perencanaan yang matang sebelum melakukan pengangkatan, Lifting Plan membantu menghindari kesalahan atau kegagalan yang dapat mengakibatkan penundaan atau biaya tambahan. Ini dapat menghemat waktu dan biaya yang akan dikeluarkan jika terjadi kejadian yang tidak terduga. - Memastikan Kepatuhan terhadap Peraturan K3
Dengan merinci prosedur dan langkah-langkah keselamatan yang harus diikuti, Lifting Plan memastikan bahwa kegiatan pengangkatan beban dilakukan sesuai dengan peraturan dan standar keselamatan yang berlaku. Ini membantu organisasi untuk tetap patuh terhadap regulasi K3 dan menghindari potensi sanksi atau denda akibat pelanggaran.
Tujuan Lifting Plan adalah untuk memastikan bahwa kegiatan pengangkatan beban dilakukan dengan aman dan efisien di lingkungan kerja. Berikut adalah beberapa tujuan utama dari Lifting Plan:
- Menetapkan Prosedur Pengangkatan yang Aman
Lifting Plan bertujuan untuk merinci prosedur yang tepat dan aman untuk melakukan pengangkatan beban. Hal ini termasuk dalam penentuan teknik pengangkatan yang aman, pemilihan alat bantu yang sesuai, serta langkah-langkah pencegahan yang harus diambil untuk menghindari kecelakaan atau cedera. - Mengidentifikasi dan Mengendalikan Risiko K3
Lifting Plan bertujuan untuk mengidentifikasi potensi risiko yang terkait dengan kegiatan pengangkatan beban, seperti risiko terhadap pekerja, lingkungan, atau peralatan. Setelah risiko diidentifikasi, langkah-langkah pencegahan yang tepat dapat diambil untuk mengendalikan risiko tersebut dan mengurangi kemungkinan terjadinya kecelakaan atau cedera. - Memastikan Komunikasi yang Efektif antar Pekerja
Tujuan Lifting Plan adalah untuk memastikan bahwa komunikasi antara semua personil yang terlibat dalam kegiatan pengangkatan berjalan dengan lancar dan efektif. Ini termasuk dalam menjelaskan peran dan tanggung jawab masing-masing personil, serta memastikan bahwa instruksi dan informasi penting disampaikan dengan jelas dan dipahami oleh semua orang. - Memilih Peralatan yang Tepat untuk Pengangkatan
Lifting Plan bertujuan untuk memastikan pemilihan alat dan peralatan yang tepat untuk melakukan pengangkatan beban. Hal ini melibatkan dalam mengevaluasi karakteristik beban yang akan diangkat, serta memilih alat bantu yang sesuai dan terbaik untuk pekerjaan tersebut guna memastikan keamanan dan efisiensi. - Menentukan Metode Pengangkatan yang Aman
Tujuan utama Lifting Plan adalah untuk menentukan metode pengangkatan yang aman dan sesuai dengan standar keselamatan yang berlaku. Ini melibatkan dalam merencanakan langkah-langkah teknis yang tepat untuk melakukan pengangkatan, serta mempertimbangkan faktor-faktor seperti kondisi lingkungan kerja, beban yang akan diangkat, dan keterampilan operator alat bantu.
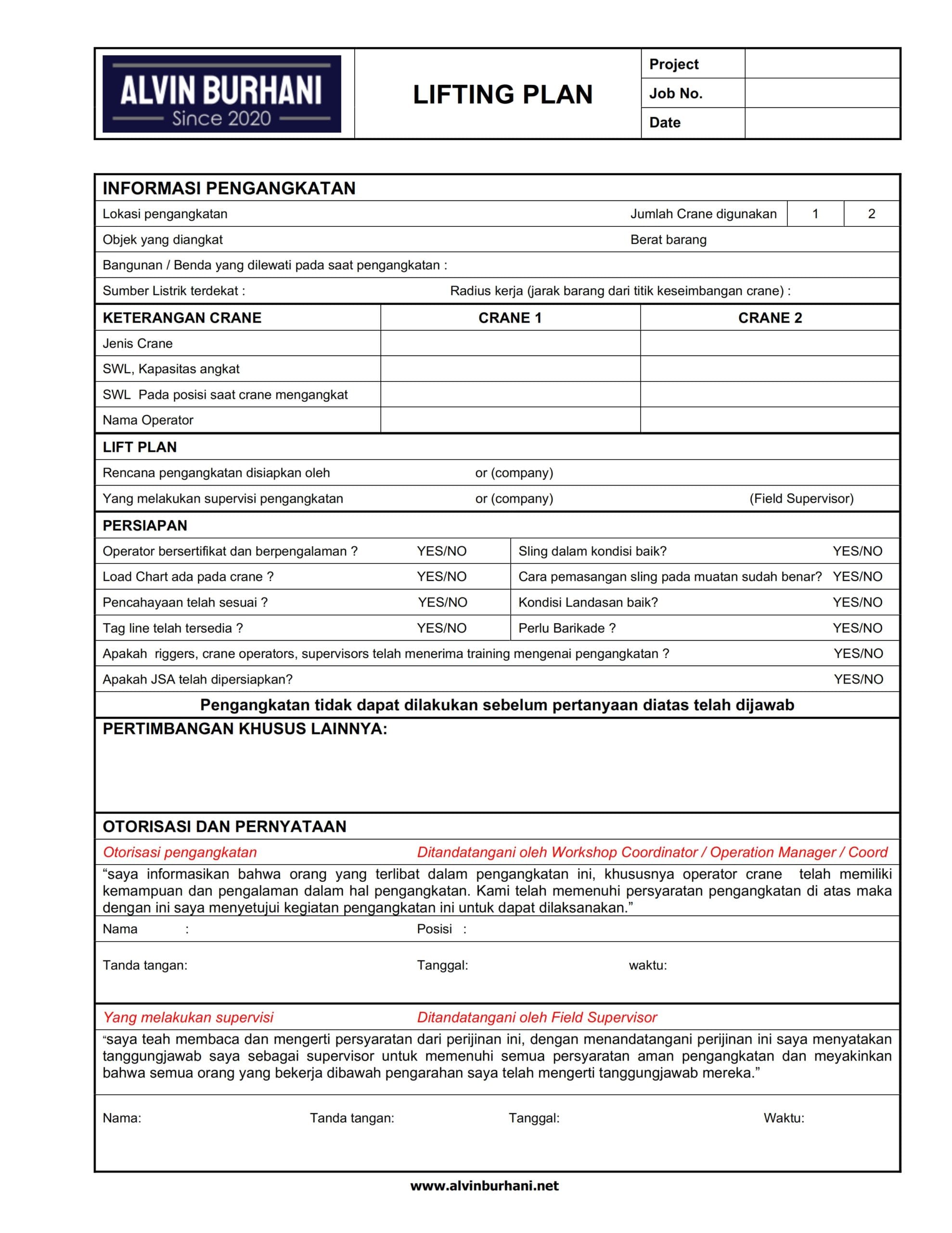
Komponen Lifting Plan adalah bagian-bagian yang penting untuk memastikan bahwa kegiatan pengangkatan beban dilakukan dengan aman dan efisien. Berikut adalah komponen-komponen utama dari Lifting Plan:
- Informasi Umum:
- Nama proyek dan lokasi: Menunjukkan proyek atau lokasi tempat kegiatan pengangkatan beban akan dilakukan.
- Tanggal dan waktu pengangkatan: Menetapkan jadwal pelaksanaan kegiatan pengangkatan.
- Nama penanggung jawab: Identifikasi individu atau tim yang bertanggung jawab atas pelaksanaan pengangkatan beban.
- Deskripsi benda yang akan diangkat: Memberikan gambaran tentang jenis benda yang akan diangkat.
- Berat dan dimensi benda: Menyediakan informasi tentang berat dan dimensi benda yang akan diangkat.
- Titik angkat dan area kerja: Menentukan lokasi dan titik-titik di mana benda akan diangkat serta area kerja yang terkait.
- Peralatan:
- Jenis dan kapasitas alat angkat: Menyebutkan jenis alat angkat yang akan digunakan serta kapasitasnya.
- Peralatan bantu pengangkatan (sling, shackles, dll.): Daftar peralatan tambahan yang diperlukan untuk melakukan pengangkatan dengan aman.
- Inspeksi dan sertifikasi peralatan: Memastikan bahwa semua peralatan telah diinspeksi dan disertifikasi sesuai dengan standar keselamatan yang berlaku.
- Prosedur Pengangkatan:
- Persiapan area kerja: Langkah-langkah yang harus diambil untuk mempersiapkan area kerja sebelum pelaksanaan pengangkatan.
- Pemasangan alat angkat: Instruksi tentang cara memasang dan mengatur alat angkat dengan benar.
- Pengangkatan dan pemindahan benda: Prosedur yang harus diikuti saat melakukan pengangkatan dan pemindahan benda.
- Penurunan dan penyimpanan benda: Langkah-langkah untuk menurunkan benda dengan aman setelah selesai pengangkatan serta prosedur penyimpanannya.
- Komunikasi:
- Sinyal tangan dan komunikasi verbal: Menjelaskan sistem komunikasi yang akan digunakan antara operator dan pekerja lainnya selama kegiatan pengangkatan.
- Tanggung jawab dan peran tim kerja: Menetapkan tanggung jawab dan peran masing-masing anggota tim kerja yang terlibat dalam pengangkatan.
- Keadaan Darurat:
- Prosedur evakuasi dan penyelamatan: Instruksi tentang langkah-langkah yang harus diambil dalam situasi darurat, seperti kebakaran atau benda jatuh.
- Peralatan P3K dan kontak darurat: Menyediakan informasi tentang lokasi peralatan pertolongan pertama dan kontak darurat yang harus dihubungi dalam situasi darurat.
Cara menggunakan Lifting Plan di lapangan melibatkan
- Membaca dan memahami setiap bagian dari Lifting Plan sebelum memulai kegiatan pengangkatan.
- Mengkomunikasikan informasi penting kepada semua anggota tim yang terlibat dalam kegiatan pengangkatan.
- Memastikan bahwa semua peralatan telah diinspeksi dan disiapkan dengan baik sebelum pelaksanaan pengangkatan.
- Melaksanakan prosedur pengangkatan sesuai dengan yang telah ditetapkan dalam Lifting Plan.
- Tetap waspada terhadap perubahan atau situasi darurat yang mungkin terjadi, dan segera mengambil langkah-langkah yang diperlukan sesuai dengan prosedur yang telah ditetapkan.
Penting untuk diingat bahwa mengikuti prosedur Lifting Plan dengan cermat adalah kunci untuk menjaga keselamatan dan kesehatan selama kegiatan pengangkatan beban. Hal ini membantu mencegah kecelakaan dan cedera serta memastikan bahwa kegiatan tersebut dilakukan dengan efisien dan sesuai dengan standar keselamatan yang ditetapkan.
Kesimpulan
Dalam konteks pengangkatan benda berat, Lifting Plan adalah sebuah instrumen yang tak tergantikan untuk menjaga keselamatan kerja. Dengan memuat detail prosedur yang harus diikuti secara cermat, dokumen ini menjadi panduan yang krusial bagi setiap proyek yang melibatkan pengangkatan beban. Dengan mengikuti Lifting Plan dengan teliti, risiko kecelakaan dan cedera dapat diminimalkan secara signifikan. Dalam hal ini, kehati-hatian dan kewaspadaan menjadi kunci utama untuk memastikan bahwa proyek dapat diselesaikan dengan aman dan efisien. Lifting Plan bukan hanya sekadar dokumen administratif, tetapi merupakan komitmen nyata untuk menjaga keselamatan dan kesehatan pekerja di tempat kerja. Dengan demikian, penting bagi setiap individu yang terlibat dalam kegiatan pengangkatan beban untuk memahami dan mengikuti prosedur yang tercantum dalam Lifting Plan demi keselamatan bersama.







